Test Area 1-115 Control Room


LOOKING SOUTH TO THE CONTROL CENTER FROM THE EAST SIDE OF TEST STAND 1-A.


CONTROL ROOM INTERIOR, CONSOLE AND MONITORS. Looking west.


CABLE TUNNEL TO TEST STAND 1-A, LOOKING SOUTH TO STAIRS LEADING UP TO CONTROL CENTER.


'TEST CONDUCTORS PANEL AT TEST STAND 1-A, DIRECTORATE OF MISSILE CAPTIVE TEST, EDWARDS AFB, 15 JAN 58, 3098.58.' A photograph of the control room, with seven men watching monitors and instrument panels. Photo no. '3098 58; G-AFFTC 15 JAN 58; Test Conductors Panel T.S. 1-A'.


'UNDERGROUND CONTROL ROOM AT TEST STAND 1-A, DIRECTORATE OF MISSILE CAPTIVE TEST, EDWARDS AFB, 15 JAN 58, 3097.58.' Two men working in the control room. Photo no. '3097 58; G-AFFTC 15 JAN 58, T.S. 1-A Control'.


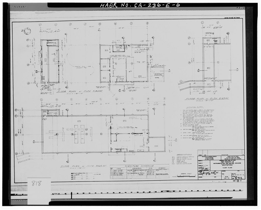
Control Room design


Control Room design


Control Room design